WWW.PROJEKT-AS.CZ

Kontakty
Petr Válek:    606 02 66 11
Štěpán Válek: 606 96 24 09
e-mail: projekt-as@email.cz
Nabídka objektů
<<< zpět na seznam nabízených objektů

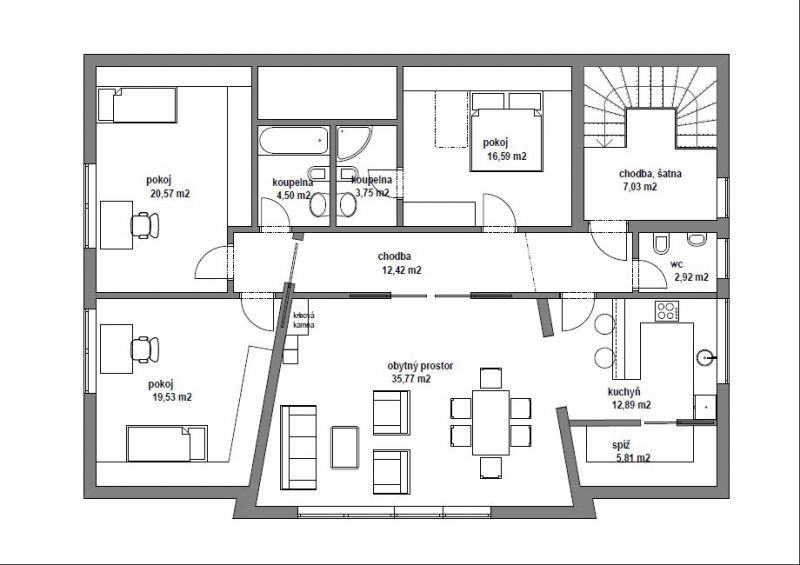
201302 | Rozestavěný dům Velký Luh
Prodej
Rezervováno
Cena: 2 800 000,- Kč
Dohoda při osobním jednání
Prodám rozestavěný dvougenerační dům ve Velkém Luhu v okr. Cheb, 9 km od Františkových Lázní, 8 km od hraničního přechodu do SRN.
Zastavěná plocha je 198 m2, užitná plocha 396 m2 a pozemek 1500 m2. Dům je ve fázi hrubé stavby, na jaře bude zahájeno zastřešení. Stavební povolení bylo vydáno v roce 2001, dnes se pokračuje ve výstavbě podle nového projektu. Projekt má 4 varianty možného využití. Za 1. je možno dům dostavět pro početnou rodinu, která bude mít dostatek prostoru a komfortu. Za 2. je dům možno využít jako dvougenerační s oddělenými vchody. Díky své poloze Velkého Luhu, který leží v nádherné, zalesněné krajině blízko hranic se SRN a je obklopen min. osmi vodními plochami, převážně bývalými lomy, ale i rybníky vhodnými ke koupání a rekreaci, projekt předurčuje k podnikání. Za 3. je tedy projekt zacílen na podnikavou rodinu, v přízemí domu je komfortní bydlení a první nadzemní podlaží určeno k pronájmu pokojů, nebo jako rodinný penzion, který bude generovat příjmy. Za 4. je dům možno využít celý k podnikání jako penzion nebo menší hotel. Cena zastřešené hrubé stavby je 1 990 000 Kč.
V obci je vlaková a autobusová zastávka s přímým spojem do Františkových Lázní a Chebu, plánuje se také vybudování cyklostezky.


Poloha objektu na mapě